TOP >建設中・計画中INDEX >大阪府 >大阪市 >中央区
グランドメゾン大阪上本町STATION TOWER
グランドメゾン大阪上本町STATION TOWERは、積水ハウスとOsaka Metroが谷町九丁目駅隣接地(大阪市中央区谷町9丁目)において分譲する地上23階、地下1階、高さ77.15m、総戸数124戸のタワーマンションです。 設計はIAO竹田設計、施工は大末建設。 2029年1月下旬に竣工し、3月下旬に入居を開始する予定です。
![]() |
2025年12月30日撮影。北西側より見た建設地。
立面図
![]() |
北立面図。
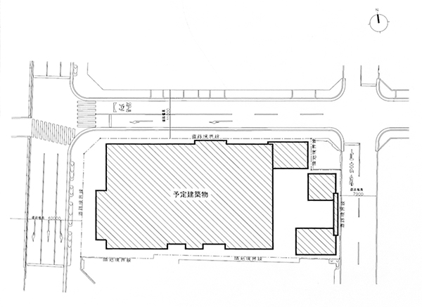
配置図
![]() |
3面が道路に接しています。
概要
| 名 称 | グランドメゾン大阪上本町STATION TOWER |
|---|---|
| 計画名 | (仮称)グランドメゾン谷町9丁目駅前新築計画 |
| 所在地 | 大阪府大阪市中央区谷町9丁目3-18(地番) 大阪府大阪市中央区谷町9丁目3-11(旧ビル住居表示) |
| 最寄駅 | Osaka Metro谷町線・千日前線「谷町九丁目」駅、近鉄「大阪上本町」駅 |
| 建築主 | 積水ハウス株式会社、大阪市高速電気軌道株式会社 |
| 設 計 | 株式会社IAO竹田設計 |
| 施 工 | 大末建設株式会社 |
| 用 途 | 分譲共同住宅(124戸) |
| 敷地面積 | 1,464.68㎡ |
| 建築面積 | 1,086.49㎡ |
| 延床面積 | 16,415.52㎡ |
| 構 造 | 鉄筋コンクリート造 |
| 階 数 | 地上23階、地下1階 |
| 高 さ | 77.150m |
| 着 工 | 2025年10月15日(労災保険関係成立票より) |
| 竣 工 | 2029年1月下旬予定 |
| 入 居 | 2029年3月下旬予定 |
| 備 考 |
◆事業主(売主)……積水ハウス株式会社、大阪市高速電気軌道株式会社 ◆販売提携(代理)…積水ハウス株式会社 ◆総戸数………………124戸 ◆間取り………………1LDK + WIC+SIC ~ 3LDK + DEN+3WIC+SC ◆専有面積……………47.20㎡ ~ 206.53㎡ ◆駐車場………………50台(平面8台、機械式駐車場42台) ◆管理会社……………積水ハウスGMパートナーズ株式会社 |
最終更新日:2026年1月12日
地図
建設地までOsaka Metro谷町線・千日前線「谷町九丁目駅」4号出入口より徒歩1分、近鉄難波・奈良線・大阪線「大阪上本町駅」西改札より徒歩4分ほどです。
2025年12月30日撮影
![]() |
「グランドメゾン大阪上本町STATION TOWER」の建築計画のお知らせ。 前回撮影時に未定だった施工者が大末建設に決まっていました。 写真クリックで拡大画像を表示。
![]() |
①の地点よりスタートします。
![]() |
①の地点より建設地を見ています。
![]() |
その左手。建設地西側は谷町筋です。
![]() |
②の地点は谷町筋の中央分離帯です。
![]() |
②の地点より見た建設地。 労災保険関係成立票によると、2025年10月15日に工事に着手しています。
![]() |
その右手。谷町筋中央部で千日前通をアンダーパスしています。
![]() |
左手。建設地北側は東高津南之町通です。
![]() |
現地の作業予定によると、年明けは杭工事を進めます。
![]() |
ここに地上23階、地下1階、高さ77.15m、総戸数124戸の高層マンションが出現します。
![]() |
③の地点に移動しました。
![]() |
③の地点より見た建設地。 間取りは1LDK+WIC+SIC~3LDK+DEN+3WIC+SC、専有面積は47.20㎡~206.53㎡を予定しています。
![]() |
その右手。建設地北側。東高津南之町通。
![]() |
左手。「あほや」などは残っています。
![]() |
④の地点に移動しました。 なお、近くでは「シエリア大阪谷町」を建設中です。
![]() |
④の地点より見た建設地。
![]() |
その左手。建設地東側の様子です。
![]() |
南東側より見た建設地。 「グランドメゾン大阪上本町STATION TOWER」は、2029年1月下旬に竣工し、3月下旬に入居を開始する予定です。
















