TOP >建設中・計画中INDEX >大阪府 >大阪市 >中央区
(仮称)本町4丁目プロジェクト
相愛学園と大成建設は、大阪市中央区本町4丁目に高層棟と中層棟で構成する地上26階、地下1階(法規上:地上25階、地下2階)、高さ124.07m、延べ面積45,532㎡の複合ビルを新設します。 高層棟は学校とオフィスで構成。 中層棟にはホテル(ソラリア西鉄ホテル大阪本町(仮称))が入ります。 設計・施工は大成建設。 2026年7月末に竣工する予定です。
![]() |
2025年12月30日撮影。
北東側より見た建設地。
中層棟には「ソラリア西鉄ホテル大阪本町(仮称)」が2026年度冬に開業する予定です。
その奥で26階建ての高層棟を建設中です。
大成建設は2025年12月5日、本プロジェクトにおいて、事業活動や社会のさまざまな場面で生じる副産物を建設資材として再生・循環させることで、持続可能な資源利用モデルの構築を進め、サーキュラーエコノミーの実現に貢献すると発表しました。
ニュースリリースは→こちら
完成イメージ
![]() |
[大成建設2022年11月15日付ニュースリリースより引用]
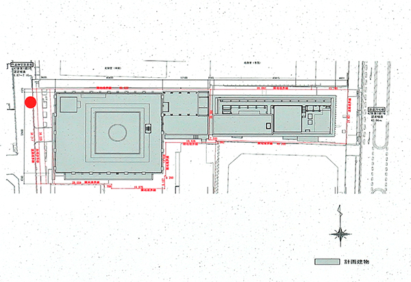
御堂筋側(北東)より見ています。 大成建設が所有する大阪第二有楽ビルと、隣接する学校法人相愛学園の体育施設等を一体的に建て替えています。 御堂筋側に中層棟、その西側に26階建ての高層棟を建設します。
用途構成
![]() |
[大成建設2022年11月15日付ニュースリリースより引用]
1階には御堂筋からのにぎわいを引き込む東西貫通通路を軸として、店舗や地域イベント開催スペース等を配置する計画です。
立面図
![]() |
免震構造を採用する高層棟は、2~8階に学校法人相愛学園の学校施設、10~25階にオフィスを配置します。
配置図
![]() |
相愛学園の施設の跡地に高層棟、御堂筋に面した第二有楽ビル跡地に中層棟を配置します。
概要
| 名 称 | (仮称)本町4丁目プロジェクト |
|---|---|
| ホテル名 | ソラリア西鉄ホテル大阪本町(仮称)(中層棟) |
| 所在地 | 大阪市中央区本町四丁目27番11の一部ほか(地番) 大阪市中央区本町四丁目 以下未定(住居表示) |
| 最寄駅 | Osaka Metro御堂筋線・四つ橋線・中央線「本町」駅 |
| 建築主 | 学校法人相愛学園、大成建設株式会社 |
| 設 計 | 大成建設株式会社 |
| 施 工 | 大成建設株式会社 |
| 用 途 | 学校、事務所、ホテル、物販店舗、飲食店、駐車場 |
| 敷地面積 | 3,309.00㎡ |
| 建築面積 | 2,557.29㎡ |
| 延床面積 | 45,486.19㎡ |
| 構 造 | 鉄骨造、一部鉄筋コンクリート積層構造、免震構造(高層棟) |
| 階 数 | 地上26階、地下1階、塔屋2階(法規上:地上25階、地下2階、塔屋2階) |
| 高 さ | 124.07m |
| 着 工 | 2022年11月15日 |
| 竣 工 | 2026年7月31日予定 |
最終更新日:2026年1月13日
地図
大阪メトロ「本町駅」改札に直結する地下1階から、施設内1階をバリアフリー化することで、地下鉄利用者の地上までのアクセスを改善します。
2025年12月30日撮影
![]() |
①の地点よりスタートします。
![]() |
①の地点より建設地を見ています。左が中層棟、右が高層棟、手前が北御堂(本願寺津村別院)です。
![]() |
その左手。御堂筋。
![]() |
高層棟はもう少し高くなりそうですね。
![]() |
中層棟は、「ソラリア西鉄ホテル大阪本町(仮称)」として2026年度冬に開業する予定です。 西鉄グループが中層棟のホテル部分を賃借し出店します。 「ソラリア西鉄ホテル京都プレミア-三条鴨川-」につづく、関西エリア2店舗目の「SOLARIA」ブランドとなります。
![]() |
東側より見た中層棟。 1階にエントランス、2階にレストラン(朝食会場)、3階にフロント、ロビー、ラウンジ、フィットネスジムを配置。 4~13階には、ダブル・ツインのほか、トリプルやミニキッチン・洗濯乾燥機等を備えた客室など9タイプ全209室を設けます。
![]() |
②の地点に移動しました。
![]() |
②の地点より見た高層棟。右は相愛学園です。
![]() |
その左手。渡辺筋。こちらに進みます。
![]() |
高層棟は地上26階、(法規上:地上25階)です。
![]() |
2~8階が学校法人相愛学園の学校施設となり、教室、体育館、トレーニングルームなどを設ける予定です。
![]() |
10~25階には約4,400坪(基準階面積約280坪)、最大4分割まで可能なオフィスを計画しています。
![]() |
西側より見た高層棟。
![]() |
③の地点に移動しました。
![]() |
③の地点より見た高層棟。2026年7月末に竣工する予定です。
![]() |
その右手。高層棟西側。渡辺筋です。

















